Maria Lake Ranch
686 County Road 120
Walsenburg
Colorado 81089
(719) 989-0074
Info@MariaLakeRanch.com

Lot 8, 686 County Road 120, Walsenburg, Colorado

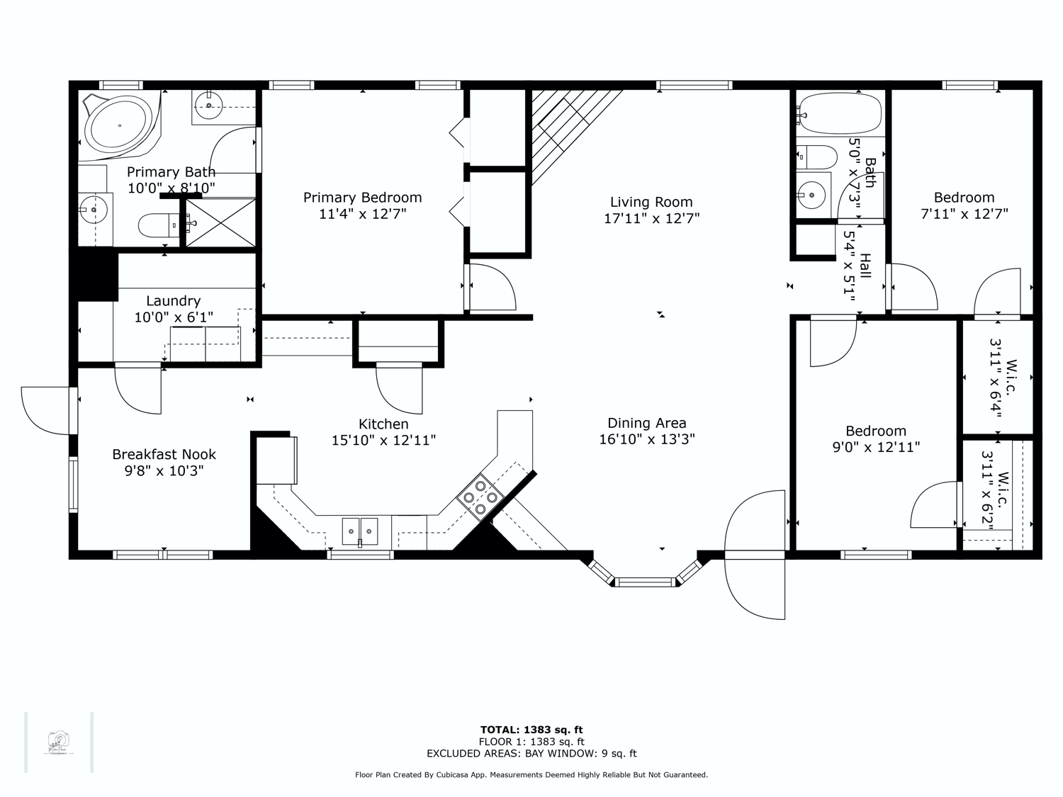
Located 5 miles east of Walsenburg, this listing boasts incredible opportunities for anyone who enjoys the beauty of nature. The house is a 3-bedroom 2 bathroom that features a wonderfully crafted walkout porch perfect for enjoying the lakeside views.

The master bedroom includes two closets while the master bathroom features a large soaking tub. The living area is an open concept that ties the kitchen dining room and living room together beautifully. This listing offers a vintage feel while still offering a well-built sturdy construction.

This listing has the option of being furnished or unfurnished at the time of purchase. Purchasing a home in this subdivision also gives you the option to join the Maria Lake Sportsmen’s Club which offers private use of the lake including fishing and watersports.

Maria Lake is home to many trophy rainbow trout and is stocked annually with young trout that have the environment needed to grow into true trophies. For hunters the club offers a rifle/pistol range, shotgun 5 stand range and an archery range as well as duck hunting through the fall/winter. Come see what this wonderful listing has to offer you!

Donald E. Siecke at Maria Lake RanchDonald E. Siecke

You can contact Don about this property:
(303) 229-8300
Email Don

Maria Lake Ranch, Lot 8, Walsenburg

Active Residential

Maria Lake Ranch, Lot 8, Walsenburg - $565,000

3 2 1 Story

2 Detached

1,582 sq ft,   2.72 +/- Acres

Lot: 16
Built: 2025
Zoning: Rural Residential
Views: Lake, Mountain
Suitable Use: Residential Single Family
Deck: Deck Covered, Pergola
HOA: $270 /month
HOA includes: Road Maintenance, General Landscaping of Subdivision
Lot Description: Irregular
Topography: Flat
Road: Gravel
Electrical: San Isabel Electric Association
Water: Maria Lake Management Group, Inc.
Gas Hook Up: Propane
Sewer: Septic